富士市・富士宮市の不動産のことならなんでもご相談を!株式会社K・S不動産企画

富士市・富士宮市の不動産のことならなんでもご相談を!株式会社K・S不動産企画
賃貸物件
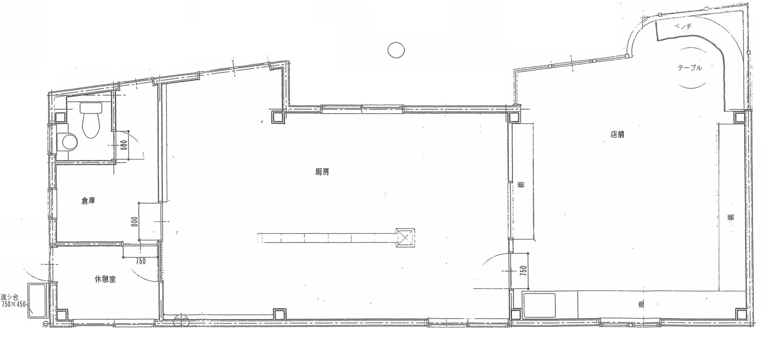
中丸貸店舗(富士市中丸409-1)
賃料 143,000
物件種目
貸店舗
所在地
中丸貸店舗(富士市中丸409-1)

            
最寄駅 東海道新幹線「新富士」駅 交通新幹線「新富士」駅 徒歩約15分
建物名 中丸貸店舗 管理費等 なし
敷金 3ヵ月 礼金 なし
間取り 使用部分面積 79.43㎡(24.02坪)
建物構造 鉄骨造亜鉛メッキ鋼板葺平屋建て
契約期間 3年 築年月 平成 11 年 8 月
駐車場 店舗前に6台可 入居日 相談
現状 空き 取引態様 仲介
本体設備 電気・公営水道・都市ガス・公共下水   
学区 田子浦小学校 田子浦中学校
備考●引渡し状態は相談、新規設備等は借主負担。 ●火災保険(家財保険・借家人賠償保険付)加入要。 ●家賃保証会社利用必須。 ●一部の業種はお断りする場合があります。             
 
物件番号 c-0054
田子浦地区主要道路沿い物件!小学校、中学校、幼稚園も近く、おしゃれな外観で人目に留まりやすい物件です☆彡駐車も6台可!新富士駅も徒歩圏内、国1バイパスも近く交通アクセスも良好です!
 
お問い合わせはこちら

お問い合わせフォーム

「 ksfudousan@future.ocn.ne.jp 」が受信できるよう予め設定をお願い致します。

 

お名前 (必須)
住所
電話番号 (必須)
メール (必須)
お問い合わせ物件番号  
例:t-0001
※掲載物件に関するお問い合わせの方は、該当の物件番号をご記入ください。
内容 (必須)
文字認証 (必須) captcha 

 


 

不動産全般土地情報中古物件賃貸物件資産相談出張価格査定ご購入・ご売却不動産Q&Aホーム | ブログ

株式会社K・S不動産企画 〒416-0933 静岡県富士市中丸282-1 TEL 0545-67-5555 FAX 0545-61-9511

静岡県知事(3)第12904号